Views: 0 Author: Lisa Publish Time: 2025-12-11 Origin: Site
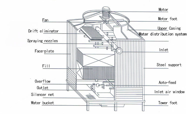
The motor in a cooling tower is one of the key mechanical components that drives the airflow needed for heat rejection. Its main functions are:
The motor provides mechanical power to rotate the cooling tower fan.
The fan creates airflow (either forced draft or induced draft), which draws air through the tower to enhance **evaporation** and **cooling** of the circulating water.
The motor ensures the fan maintains the correct speed (RPM) to achieve the desired **airflow (CFM)**.
More airflow → more evaporation → more cooling capacity.
Cooling load changes throughout the day.
* Variable-speed motors (VFD-driven) adjust fan speed based on temperature setpoints.
* This saves energy and maintains stable cold-water temperature.
* Fan blade pitch angle
* Air resistance
* Gearbox or drive system losses
* Inlet louvers and drift eliminator resistance
* Overheating
* Under-cooling
* Excessive vibration
* Fan stalling
It keeps the tower running efficiently and safely.
* Direct drive (motor directly connected to fan)
* Gear drive (motor → gearbox → fan)
* Belt drive (motor → belts/pulley → fan)
Each setup affects efficiency, torque, and maintenance.
The cooling tower motor’s primary function is to provide the rotational power required to turn the fan and maintain airflow through the tower for effective heat rejection.

Cooling Tower Fill | Cooling Tower Fan | Cooling Tower Speed Reduer | Cooling Tower Motor | Cooling Tower Drift Eliminator | Cooling Tower Fan Stacks | Cooling Tower Sprinkler Head | Cooling Tower Air Inlet Louver | Cooling Tower Basin | Cooling Tower Casing | Cooling Tower Nozzle | Cooling Tower Spray Pan | Cooling Tower Plastic Accessories
Marley/Spx | Liang Chi | Kingsun | EBABA/Shinwa | Spindle | Kuken | BAC | Brentwood | Evapco | Royden
HOME | PRODUCTS | OEM BRANDS | ABOUT US | BLOG | FAQ | CONTACT US
Cooling Tower Fill Cooling Tower Fan Cooling Tower Speed Reduer Cooling Tower Motor Cooling Tower Drift Eliminator Cooling Tower Fan Stacks Cooling Tower Sprinkler Head Cooling Tower Air Inlet Louver Cooling Tower Basin Cooling Tower Casing Cooling Tower Nozzle Cooling Tower Spray Pan Cooling Tower Plastic Accessories