Views: 0 Author: Site Editor Publish Time: 2025-11-26 Origin: Site
During the operation of the cooling tower, circulating water comes into contact with air through the fill and evaporates to dissipate heat, while also producing a large number of tiny water droplets that are discharged along with the airflow. If left uncontrolled, these water droplets will be expelled from the cooling tower with the air, leading to increased water consumption, loss of chemical agents, and potential corrosion and pollution to surrounding equipment and the environment. To reduce this phenomenon, a Drift Eliminator must be installed in the cooling tower. This article will introduce the main functions, working principles, and importance of using a drift eliminator.

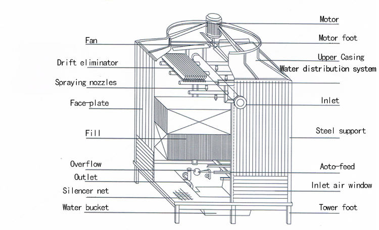
The drift eliminator, also known as a water stopper or defogger, is a set of special structure baffle components installed at the outlet of the cooling tower. Its function is to use channels with multiple bends and bends to capture and reflux water droplets that rise with the airflow into the tower without significantly obstructing air flow.
The evaporation loss of cooling towers is normal, but the loss of floating water is unnecessary and can be reduced.
The float can significantly reduce the amount of float water and control the content of discharged water droplets within:
Reducing float can significantly save on water replenishment costs.
Circulating water usually includes:
If the water droplets are blown away, these medicines will also be lost together, resulting in:
The float effectively reduces the waste of chemicals.
Drifting water droplets may cause:
Increased risk of spread of cooling tower fungi (such as Legionella)
An efficient float can minimize these risks and ensure the safety of the surrounding environment and personnel.

1)Regularly check for damage, aging, or deformation
2)Clean up scale, dust, algae, and dirt
3)Ensure that the installation position is secure and there are no gaps or leaks
4)The cleaning cycle depends on the water quality, usually every 3-6 months
Blockage of the drift eliminator will increase air resistance and reduce the efficiency of the cooling tower, which should be dealt with in a timely manner.
Cooling Tower Fill | Cooling Tower Fan | Cooling Tower Speed Reduer | Cooling Tower Motor | Cooling Tower Drift Eliminator | Cooling Tower Fan Stacks | Cooling Tower Sprinkler Head | Cooling Tower Air Inlet Louver | Cooling Tower Basin | Cooling Tower Casing | Cooling Tower Nozzle | Cooling Tower Spray Pan | Cooling Tower Plastic Accessories
Marley/Spx | Liang Chi | Kingsun | EBABA/Shinwa | Spindle | Kuken | BAC | Brentwood | Evapco | Royden
HOME | PRODUCTS | OEM BRANDS | ABOUT US | BLOG | FAQ | CONTACT US
Cooling Tower Fill Cooling Tower Fan Cooling Tower Speed Reduer Cooling Tower Motor Cooling Tower Drift Eliminator Cooling Tower Fan Stacks Cooling Tower Sprinkler Head Cooling Tower Air Inlet Louver Cooling Tower Basin Cooling Tower Casing Cooling Tower Nozzle Cooling Tower Spray Pan Cooling Tower Plastic Accessories