Vues : 0 Auteur : Éditeur du site Heure de publication : 2026-01-30 Origine : Site
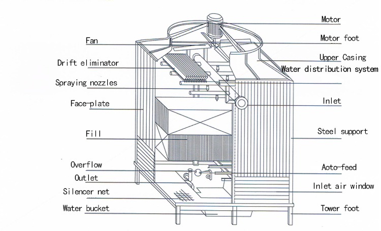
Le La buse de la tour de refroidissement est le composant central du système d’eau de la tour de refroidissement. Sa fonction principale est de pulvériser uniformément de l'eau chaude en circulation sur la surface du matériau d'emballage, permettant à l'eau d'entrer entièrement en contact avec l'air, améliorant ainsi l'efficacité de la dissipation thermique par évaporation et du transfert de chaleur. Les performances des buses affectent directement l'effet de refroidissement et la stabilité opérationnelle globale des tours de refroidissement et sont largement utilisées dans les systèmes électriques, chimiques, sidérurgiques, de climatisation et d'eau de circulation industrielle.
L'eau chaude en circulation pénètre dans la buse sous la pression de la pompe à eau, et la buse décompose le débit d'eau en petites gouttelettes d'eau ou en films d'eau uniformes à travers sa structure spéciale (telle que des canaux rotatifs, éclaboussants ou sous pression), et les pulvérise sur l'emballage de la tour de refroidissement selon un certain angle et une certaine plage. Pendant le processus de chute, l'eau entre en plein contact avec l'air introduit par le ventilateur, et une partie de l'eau s'évapore et évacue la chaleur, réduisant ainsi la température de l'eau restante. L'eau refroidie est ensuite renvoyée vers le réservoir de collecte pour être recyclée, obtenant ainsi un processus de refroidissement continu et stable.

La raison pour laquelle Les buses pour tours de refroidissement sont si populaires sur le marché philippin, principalement en raison du climat chaud et humide, de la forte dépendance des bâtiments industriels et commerciaux aux systèmes de refroidissement et des exigences exceptionnelles en matière d'efficacité opérationnelle et de stabilité des tours de refroidissement. En tant que composant de distribution d'eau le plus critique dans les tours de refroidissement, les buses affectent directement l'effet de dissipation thermique et le niveau de consommation d'énergie. Les buses haute performance peuvent assurer une distribution uniforme de l'eau, réduire le blocage et le tartre, réduisant ainsi considérablement les coûts de maintenance et prolongeant la durée de vie de l'équipement. Parallèlement, ces dernières années, la croissance rapide des complexes énergétiques, chimiques, alimentaires et commerciaux à grande échelle aux Philippines a entraîné une demande soutenue de tours de refroidissement et de leurs composants de base, ce qui a permis aux buses de tours de refroidissement de conserver une grande popularité sur le marché local pendant longtemps.

PT est un excellent fabricant national de pièces pour tours de refroidissement. Depuis sa création en 2009, PT a toujours adhéré au concept de « qualité durable et d'innovation sans fin ». PT produit différents types de buses à trois éclaboussures, buses Marley, buses pour eaux usées, buses pour paniers de fleurs, etc., en matériau ABS. La société possède plus de 40 brevets technologiques pratiques d'inventions de produits et possède les certifications iS09001, 1S014000 et autres.
Aquacool Engineering Corporation est un autre acteur majeur sur le marché des tours de refroidissement aux Philippines. Ils se spécialisent dans les composants de tours de refroidissement, y compris les buses, conçues pour assurer une distribution uniforme de l'eau et maximiser l'efficacité du transfert de chaleur. L'entreprise est réputée pour son engagement à fournir des solutions innovantes et fiables pour les systèmes de refroidissement industriels.
TowerTech Cooling Solutions propose une large gamme de composants pour tours de refroidissement, avec un accent particulier sur la conception et la fabrication de buses. Leurs buses sont connues pour leur durabilité et leur efficacité à répartir l’eau uniformément dans la tour de refroidissement. TowerTech est réputé pour travailler avec des clients de divers secteurs, notamment les centrales électriques et les installations de fabrication.
Cooltech Engineering est un fabricant et fournisseur réputé de composants de tours de refroidissement aux Philippines, notamment de buses. La société propose des buses standard et personnalisées conçues pour la durabilité, l’efficacité de l’eau et la facilité d’entretien. Cooltech dessert un large éventail d'industries, notamment les secteurs de la fabrication, de l'énergie et du CVC.
TowerPak Corporation est une société établie aux Philippines, spécialisée dans les solutions pour tours de refroidissement, y compris la fourniture et la fabrication de buses. Leurs buses sont conçues pour assurer une distribution optimale de l’eau et résister à des conditions de fonctionnement difficiles. Ils se concentrent sur la fourniture de produits fiables pour divers secteurs, notamment les systèmes de refroidissement industriels, la production d'électricité et le CVC.
TOP 5 des fabricants de réducteurs de tour de refroidissement à Singapour pour 2026
TOP 5 des fabricants de réducteurs de tour de refroidissement en Thaïlande pour 2026
Éliminateur de dérive de tour de refroidissement Liangchi de taille personnalisée
Éliminateur de dérive de tour de refroidissement Marley de taille personnalisée
Éliminateur de dérive de tour de refroidissement de taille personnalisée
Pièces de tour de refroidissement pour la maintenance des centrales électriques
Contrat de service de maintenance des tours de refroidissement
Fournisseur de moteurs de tour de refroidissement certifié ATEX
Prix des pièces de rechange pour tour de refroidissement de 100 tonnes
Remplissage de la tour de refroidissement | Ventilateur de tour de refroidissement | Réducteur de vitesse de tour de refroidissement | Moteur de tour de refroidissement | Éliminateur de dérive de tour de refroidissement | Piles de ventilateurs de tour de refroidissement | Tête d'arrosage de tour de refroidissement | Persienne d'entrée d'air de tour de refroidissement | Bassin de la tour de refroidissement | Boîtier de tour de refroidissement | Buse de tour de refroidissement | Bac de pulvérisation pour tour de refroidissement | Accessoires en plastique pour tour de refroidissement
Marley/Spx | Liang Chi | Roi Soleil | EBABA/Shinwa | Broche | Kuken | BAC | Brentwood | Evapco | Royden
MAISON | PRODUITS | MARQUES OEM | À PROPOS DE NOUS | BLOGUE | FAQ | CONTACTEZ-NOUS
Remplissage de la tour de refroidissement Ventilateur de tour de refroidissement Réducteur de vitesse de tour de refroidissement Moteur de tour de refroidissement Éliminateur de dérive de tour de refroidissement Piles de ventilateurs de tour de refroidissement Tête d'arrosage de tour de refroidissement Persienne d'entrée d'air de tour de refroidissement Bassin de la tour de refroidissement Boîtier de tour de refroidissement Buse de tour de refroidissement Bac de pulvérisation pour tour de refroidissement Accessoires en plastique pour tour de refroidissement